レクシア宮崎大橋アクアテラス|中古マンション|1,890万円|2LDK|専有面積 17.55坪
住まいの価値は、広さや設備といった数値だけで測れるものではありません。
日々の暮らしの中で感じる光や風、そして何気なく外へ視線を向けたときに広がる景色。
そうした体感の積み重ねこそが、住まいの満足度を大きく左右します。
宮崎市内を雄大に流れる大淀川。その穏やかな水面を渡る風が、日常の喧騒をやわらかくほどいてくれるような場所に、「レクシア宮崎大橋アクアテラス」は佇んでいます。
都市の利便性を確保しながらも、自然の潤いを身近に感じることができるこの立地は、宮崎という地域性を象徴する住環境のひとつと言えるでしょう。
今回ご紹介するのは、南向きの開口部を備えた2階のお部屋。
室内に一歩足を踏み入れた瞬間、光の広がりとともに感じる空気の軽やかさ。
その第一印象が、この住まいの本質を静かに物語っています。
大淀川の景色とつながる、開放的なリビング空間
リビングに入ると、南向きの大きな開口部からやわらかな自然光が室内に広がります。
カーテン越しでも十分な明るさを感じられ、日中は照明に頼らずとも心地よい時間を過ごすことができます。
時間帯によって変化する光の表情が、室内の空気感に穏やかなリズムをもたらします。
視線の先に広がるのは、大淀川の流れと堤防の緑。
前面に高い建物がないため、2階という階層でありながら、しっかりとした抜け感が確保されています。
水面に反射する光の揺らぎや、風に揺れる木々の動きが、日常の風景として自然に溶け込んでいきます。
高層階からの遠景とは異なり、生活の目線に近い距離で自然を感じられる点も、この住戸ならではの魅力です。
ソファに腰掛けたときにちょうどよい高さで広がる景色は、日々の暮らしに寄り添う“ちょうどよい贅沢”と言えるでしょう。
南からの光と川から抜ける風が重なり合い、室内にいながら外とのつながりを感じられる、開放的な主役空間が形成されています。
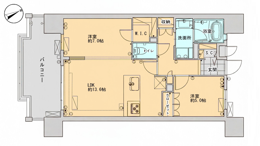
暮らしに寄り添う、可変性と機能性を備えた間取り
この住まいは、暮らしの変化に柔軟に対応できる可変性を備えた2LDKです。
リビングに隣接する洋室は引き戸によって一体利用が可能となっており、開放すれば広がりのある空間として、閉じれば独立した居室として機能します。
単身でゆったりと使うことも、共働き世帯でそれぞれのプライベート空間を確保することもでき、ライフスタイルに応じた使い分けが可能です。
対面式のキッチンは、リビング・ダイニングとのつながりを意識した配置となっており、調理をしながら空間全体を見渡せる安心感があります。ダイニングとの距離感も程よく、配膳や後片付けの動作もスムーズに行えます。
また、玄関から水回り、そしてリビングへと続く動線は無駄がなく、日常の家事や生活の流れを自然に整えてくれる設計です。見た目の広さだけではなく、「使いやすさ」に配慮された間取りであることが、実際の暮らしの快適性に直結しています。
日常に広がる水辺の時間と、安心を支える共用空間
この住まいの価値を語るうえで欠かせないのが、目の前に広がる大淀川の存在です。堤防沿いには整備された遊歩道があり、朝の澄んだ空気の中でのジョギングや、夕暮れ時に水面を眺めながらの散歩など、日々の生活の中に自然と外へ出るきっかけが生まれます。
室内で過ごす時間と、外で身体を動かす時間。その切り替えが無理なく行えることで、暮らしにリズムとゆとりが生まれます。
単なる眺望の良さにとどまらず、生活の一部として機能する環境である点が、この立地の大きな魅力です。
また、共用部においてもエントランスやラウンジは落ち着いたデザインで統一されており、分譲マンションとしての品格と管理状態の良さが感じられます。オートロックや宅配ボックスといった基本設備も整い、日々の安心と利便性をしっかりと支えています。
整えられた室内と、日常を支える設備仕様
室内は入居時にクロスの張り替えが行われており、全体として清潔感のある状態が保たれています。
フローリングや建具も良好なコンディションを維持しており、これまで丁寧に使われてきたことが感じられます。
大規模なリフォームを必要とせず、そのまま新生活をスタートできる点は、購入後の初期負担を抑えるうえでも大きなメリットとなるでしょう。
キッチンには人造大理石の天板が採用されており、見た目の美しさと実用性を兼ね備えています。ビルトインの食洗機も備え付けられており、日々の家事負担を軽減しながら、時間にゆとりを生み出します。調理スペースや収納も適切に確保されており、使い勝手の良さが感じられる設計です。
洗面化粧台は三面鏡タイプで収納力も確保されており、日常使いに配慮された仕様です。
浴室はゆとりある空間が確保され、リラックスできるバスタイムを支えます。
トイレには自動開閉機能付きの一体型設備が採用されており、衛生面・快適性の両面で優れています。
細部に至るまで実用性と快適性がバランスよく整えられていることが、この住まいの完成度をさらに高めています。
日常に、余白と潤いをもたらす住まい
この住まいの魅力は、単なる機能や広さではなく、「どのような時間を過ごせるか」という点にあります。
大淀川の流れを身近に感じるロケーション、南向きの光に満たされた室内、そして整えられた空間と設備。
それらが調和することで、日々の暮らしにゆとりと静かな満足感をもたらします。
都市の利便性を享受しながらも、自然の潤いを日常に取り込むことができるこの環境は、宮崎ならではの住まい方のひとつのかたちです。
居住用としての快適性はもちろん、将来的な資産性や用途の広がりも見据えられる点においても、バランスの取れた一室と言えるでしょう。
この景色が、日常になる暮らし。
その空気感を、ぜひ現地でご体感ください。








