レクシア宮崎大橋アクアテラス|中古マンション|2,800万円|3LDK|専有面積 23.01坪
都市の利便性と自然の調和。住まいを探す際、多くの方がこの二つの要素の間で葛藤を抱えます。
しかし、宮崎市大工三丁目に佇む「レクシア宮崎大橋アクアテラス」の8階東南角部屋は、その両方を一切の妥協なく手に入れることができる、極めて希少な住空間です。
平成27年に建築されたこの鉄筋コンクリート造13階建のレジデンスは、一級河川である大淀川の潤いをすぐそばに感じるリバーフロントに位置しています。
玄関の扉を開け、廊下を抜けた先に広がるのは、単なる「広い部屋」という言葉では到底表現しきれない、空と水景が一体となった圧倒的なパノラマビューです。
住まいという枠を超え、そこに流れる豊かな時間と景色そのものを所有する。
そんな上質な日常が、ここから始まります。
空と川が溶け込むリビング。クリアパネル越しに楽しむ「我が家の花火大会」
この邸宅の主役は、間違いなく南東角部屋ならではの多面採光が生み出す、光と風に満ちた大空間です。
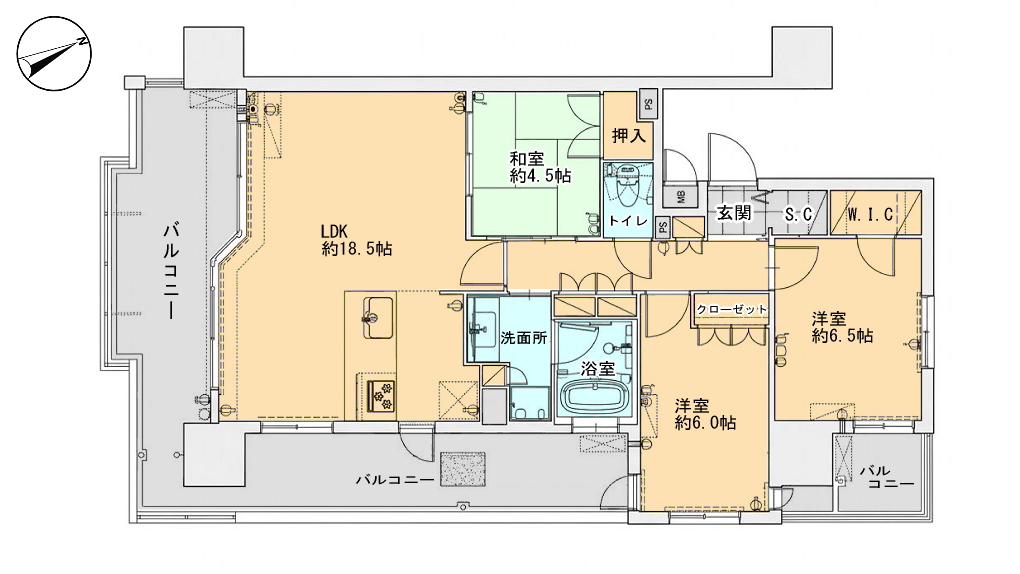
約18.5帖の広々としたリビング・ダイニング・キッチンは、隣接する約4.5帖の和室の襖を開け放つことで、およそ23帖ものゆとりある大空間へと生まれ変わります。そして、視線を上げれば目に飛び込んでくるのが、南側全面に配された大開口のハイサッシです。
バルコニーには透過性の高いクリアパネルが採用されているため、室内からでも視界を遮るものがなく、ソファに腰を下ろしたままでも大淀川の穏やかな水面や対岸の街並み、そして遠く連なる山々の稜線をまるで一枚の巨大な風景画のように楽しむことができます。
夏の夜には、この特等席が「我が家だけのプライベートビューイング」の舞台となります。
夜空を彩る大輪の花火を、人混みを気にすることなく、涼しいリビングから家族や親しい友人とグラスを傾けながら堪能できる贅沢は、このうえない資産と言えるでしょう。
また、リビングのテレビ背面には壁一面に「エコカラット」が施工されています。石目調の重厚で美しいテクスチャーが空間に高級感を与えるだけでなく、優れた調湿機能と脱臭効果によって、一年を通して室内を深呼吸したくなるような清浄な空気に保ってくれます。
美しい借景と上質な内装が織りなす空気感は、訪れるゲストに深い感銘を与えるはずです。
景観を邪魔しない美しさ。大容量収納と「回遊できる家事動線」の秘密
どれほど素晴らしい景色があっても、生活感に溢れた空間ではその魅力も半減してしまいます。
本物件が持つもう一つの大きな強みは、美しい景観を邪魔しないための「隠す収納」と、日々の暮らしを軽やかにする「計算された動線」です。玄関には大容量のシューズクローク、洋室にはウォークインクローゼットを備えており、ご家族の衣服や趣味の道具、季節の家電などをすっきりと収めることができます。
さらに特筆すべきは、その優れた家事動線です。重厚感のあるペニンシュラ型の対面キッチンは、リビングの景色を眺めながら料理ができる特等席であると同時に、背面に充実したカップボードを備え、美しさと機能性を両立しています。
さらに、キッチンのすぐ横にはバルコニーへと出られる勝手口が設けられており、ゴミ出しや換気がスムーズに行えます。
東南角部屋の恩恵としてすべての洋室がバルコニーに面しており、家中のどこにいても心地よい川風が通り抜ける、呼吸するような住まいが実現しています。
新築同然の美装と充実の設え。多様なライフスタイルに応える将来への資産性
この住まいの価値を語るうえで欠かせないのが、目の前に広がる大淀川の存在です。
堤防沿いには整備された遊歩道があり、朝の澄んだ空気の中でのジョギングや、夕暮れ時に水面を眺めながらの散歩など、日々の生活の中に自然と外へ出るきっかけが生まれます。
室内で過ごす時間と、外で身体を動かす時間。その切り替えが無理なく行えることで、暮らしにリズムとゆとりが生まれます。
単なる眺望の良さにとどまらず、生活の一部として機能する環境である点が、この立地の大きな魅力です。
また、共用部においてもエントランスやラウンジは落ち着いたデザインで統一されており、分譲マンションとしての品格と管理状態の良さが感じられます。オートロックや宅配ボックスといった基本設備も整い、日々の安心と利便性をしっかりと支えています。
整えられた室内と、日常を支える設備仕様
平成27年築という建物の若さに加え、現オーナー様が丁寧にお使いになられているため、室内は目立った傷や汚れも見受けられず、美しい状態が保たれています。水回りの清潔感も申し分なく、トイレの壁面にも部分的にエコカラットが施されるなど、見えない部分の空気環境にも細やかな配慮が行き届いています。
大がかりなリフォームを必要とせず、ご自身の好みの家具を配置するだけで、すぐにお手本のような美しい暮らしをスタートできる点は、初期費用を抑えたい方にとっても大きな安心材料となるはずです。
また、前面を遮るものがない永久眺望とも言えるこの立地は、将来にわたって色褪せることのない普遍的な資産価値を誇ります。周辺の道路アクセスが良く都市部への移動もスムーズでありながら、8階という高さが街の喧騒を遠ざけ、静謐なプライベート空間を創り出しています。
広さと部屋数を活かして子育てファミリーのメインレジデンスとしてはもちろんのこと、景色の良い一部屋をワークスペースとしたリモートワーカーの拠点、あるいは都市部にお住まいの方が週末を過ごすためのセカンドハウスやワーケーション拠点としてなど、多様なライフスタイルに柔軟に応えるポテンシャルを秘めています。
水と空が織りなす景色を、日常の背景にする贅沢
美しい水景、風の抜ける開放感、そして暮らしを支える機能美。
レクシア宮崎大橋アクアテラスのこの一室には、心豊かに生きるための条件がすべて揃っています。
写真や間取り図だけではお伝えしきれない、大淀川のきらめきや、部屋全体を包み込む穏やかな空気感を、ぜひ一度、ご自身の五感で体感してみてください。
ここから始まる新しい日常が、ご家族の人生をより一層鮮やかに彩るものとなることを確信しております。








